Turnkey Vassar Grow For Sale/Lease
3620 Rowland Rd, Vassar, MI 48768
$749,000
$6,200.00/Mo. NNN For Lease
Status: For Sale or Lease
Sale Price: $749,000
Lease Prices: $6,200.00/mo in NNN rent (long term lease)
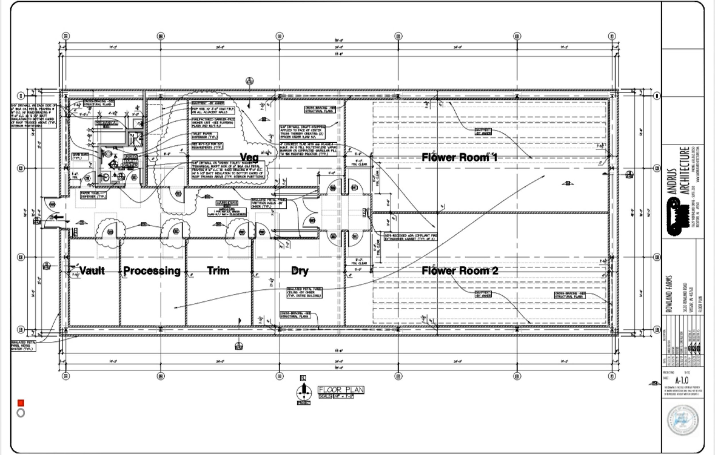
Building Sq Ft: 5650sq. ft.
Lot Size (acres): 10
Location: Vassar, MI
Use: Cultivation
Investment Highlights
749,000 cash price or $6,200.00/mo in NNN rent (long term lease)
Option for seller financing
5650 sq/ft turnkey cultivation
10 Acres of land
Includes all equipment (full list available upon request)
Marketing Description
Take a look at this exclusive offering to purchase a high end, fully turnkey cannabis cultivation site. This 5650 Sq/ft cultivation facility was very thoughtfully built. It consists of (2) large flowering rooms, (1) trim room, (1) dry room, (1) veg/mother room and a number of other ancillary spaces.
Each flowering rooms is situated with a mixture of 1000w double ended Gavitas and 750w Fluence LED's. Each room is set up with more than enough cool air with over 18 tons AC. Not to mention each room is equipped with all the bells and whistles including, rolling racks, 3 phase element sterilizer, trolmaster controller, hard piped CO2 system, dehumidifiers and much more.
Because this facility is so professionally equipped it could make perfect for a craft grower looking to make an impact on the market. For the right purchasers the sellers are open to either selling outright, seller financing or leasing the location. For showings or inquiries please get ahold of me via Elijah@mcpbrokerage.com or (313) 354-6884

